Maison intemporelleMaison Niveau + de 90 m2
La Maison Essentielle 90 m² est un modèle de maison individuelle conçu par Atelier MCA, constructeur de maisons sur mesure implanté à Lyon depuis plus de 15 ans.
Ce modèle s’adresse aux porteurs de projet souhaitant faire construire une maison fonctionnelle, équilibrée et évolutive, dans le Rhône, la métropole lyonnaise et les territoires environnants. Pensée comme une base de conception solide, la Maison Essentielle 90 m² combine clarté du projet, qualité constructive et capacité d’adaptation.


Une collection pensée pour desprojets maîtrisés
Une organisation intérieureoptimisée et fonctionnelle
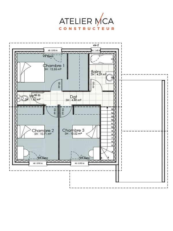
Ce modèle propose une distribution intérieure claire et rationnelle, pensée pour répondre aux besoins du quotidien.
Chaque mètre carré est réfléchi afin de limiter les surfaces perdues et de garantir une circulation fluide entre les espaces.
Cette approche permet de proposer une maison agréable à vivre, durable et adaptée à différents profils de foyers.
une cuisine ouverte ou semi-ouverte
Les niveau +
Nos maisons à niveaux

NIVEAU + 80
La Niveau + 80 m² propose une architecture compacte et structurée, jouant avec les hauteurs pour amplifier la sensation d’espace. Fonctionnelle et élégante, elle séduit par sa verticalité maîtrisée et son équilibre architectural.

NIVEAU + 100
La Niveau + 100 m² développe une architecture plus généreuse, mettant en scène la verticalité et la fluidité des espaces. Une maison au caractère affirmé, alliant structure, élégance et maîtrise des volumes.
Une maison sur plan pourune conception modulable et personnalisable
Contrairement à une maison catalogue standardisée, une maison Les Essentiels n’est jamais définitive.
Elle constitue un socle de conception, qui peut être ajusté selon vos besoins, votre terrain et votre mode de vie.
Vous souhaitez en savoir plus sur les maisons niveau + ?
FOIRE AUXQUESTIONS
Peut-on personnaliser la Maison Essentielle 90 m² ?
Cette maison est-elle adaptée à un terrain situé dans le Rhône ?
Est-il possible de faire évoluer ce modèle vers du sur-mesure ?
Atelier MCA accompagne-t-il l’ensemble du projet ?
Ce modèle respecte-t-il les normes énergétiques actuelles ?
DES MAISONS SUR-MESUREEN RÉGION LYONnAISE


