Maison intemporelleMaison Niveau + de 100 m2
La Maison Essentielle 100 m² est un modèle de maison individuelle conçu par Atelier MCA, constructeur de maisons sur mesure implanté à Lyon depuis plus de 15 ans.
La Niveau + 100 m² développe une architecture plus généreuse, mettant en scène les hauteurs et les volumes avec élégance. Son identité repose sur une verticalité assumée et une organisation fluide des espaces, offrant un véritable confort de vie. Pensée pour des projets à Lyon et dans le Rhône, elle séduit les profils recherchant une maison structurée, contemporaine et évolutive.


Une collection pensée pour desprojets maîtrisés
Une organisation intérieureoptimisée et fonctionnelle
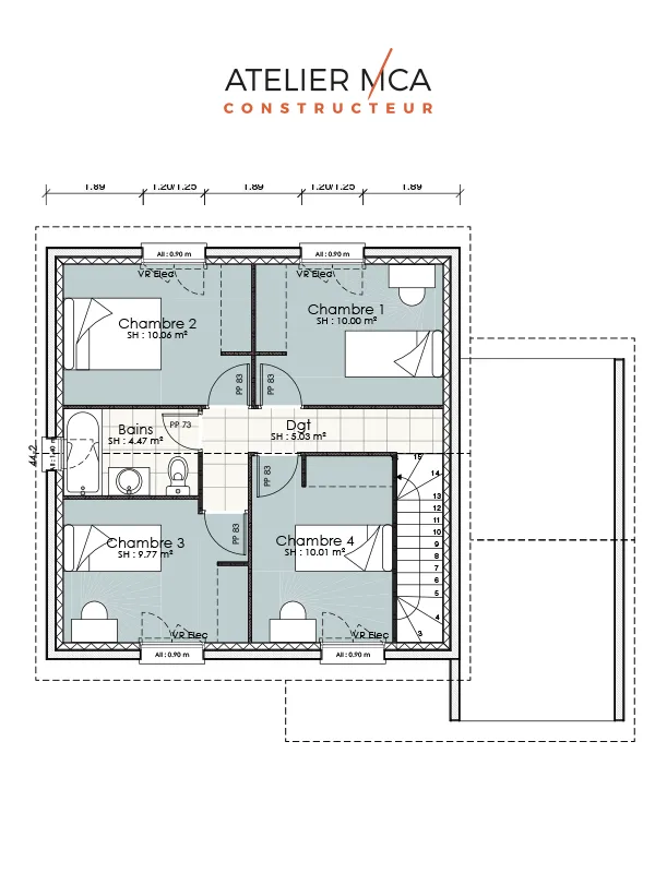
Ce modèle propose une distribution intérieure claire et rationnelle, pensée pour répondre aux besoins du quotidien.
Chaque mètre carré est réfléchi afin de limiter les surfaces perdues et de garantir une circulation fluide entre les espaces.
Cette approche permet de proposer une maison agréable à vivre, durable et adaptée à différents profils de foyers.
une cuisine ouverte ou semi-ouverte
Les niveau +
Nos maisons à niveaux

NIVEAU + 80
La Niveau + 80 m² propose une architecture compacte et structurée, jouant avec les hauteurs pour amplifier la sensation d’espace. Fonctionnelle et élégante, elle séduit par sa verticalité maîtrisée et son équilibre architectural.

NIVEAU + 90
La Niveau + 90 m² affirme une écriture contemporaine où volumes et hauteurs dialoguent avec précision. Un modèle pensé pour conjuguer organisation rigoureuse, confort et esthétique.
Une maison sur plan pourune conception modulable et personnalisable
Contrairement à une maison catalogue standardisée, une maison Les Essentiels n’est jamais définitive.
Elle constitue un socle de conception, qui peut être ajusté selon vos besoins, votre terrain et votre mode de vie.
Vous souhaitez en savoir plus sur les maisons niveau + ?
FOIRE AUXQUESTIONS
Peut-on personnaliser la Maison Essentielle 90 m² ?
Cette maison est-elle adaptée à un terrain situé dans le Rhône ?
Est-il possible de faire évoluer ce modèle vers du sur-mesure ?
Atelier MCA accompagne-t-il l’ensemble du projet ?
Ce modèle respecte-t-il les normes énergétiques actuelles ?
DES MAISONS SUR-MESUREEN RÉGION LYONnAISE


