04 72 14 52 52
VenteProgramme Terrain + MaisonProjet terrain Maison Chassieu – Chassieu

Projet terrain Maison Chassieu – Chassieu

460
485 000€

DESCRIPTION

  • DESCRIPTION:

    ATELIER MCA et son partenaire vous proposent cette opportunité unique et exceptionnelle de concrétiser votre projet de vie sur la commune de Chassieu.

    En plein cœur d'un secteur résidentiel et à proximité immédiate de l'école élémentaire et du parc Louis PRADEL, donnez vie à votre nouveau projet de vie idéalement conçu pour les familles dans un secteur calme.

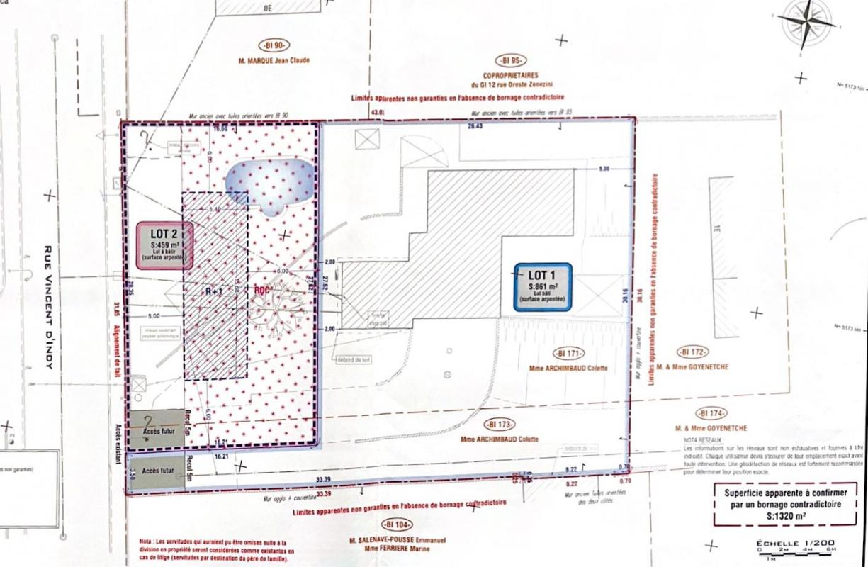
    Le terrain est issu d'une division, plat et clos sur 3 côtés. Sa double exposition idéale Sud et Ouest lui confère un ensoleillement optimal.

    ATELIER MCA vous propose, sur une parcelle viabilisée de 460 m², une maison de plain-pied de 100m2 moderne et fonctionnelle.

    La maison est composée :

    • De 3 chambres confortables,
    • Une salle de bain,
    • Un cellier communiquant avec le garage et la cuisine,
    • Une lumineuse et généreuse pièce de vie de + de 45m2.
    • Volets roulants motorisés
    • Climatisation

    Le prix global comprend :
    • Le terrain
    • Les frais de notaire
    • La construction de la maison
    • L'assurance Dommage-Ouvrage
    • L'étude de sol G2 AVP
    • Les raccordements
    • CCMI

    L'ensemble du projet est personnalisable et nous sommes à votre écoute pour tout accompagnement.

    Contactez-nous sans plus tarder. Et si notre prochain projet c'était le votre ?

    Comme nous l'impose la loi, nous vous informons qu' ATELIER MCA n'est ni propriétaire, ni vendeur du terrain

    Afficher toute la description

CARACTÉRISTIQUES

  • Constructible: OUI
  • Longueur terrain: 32 ml
  • Largeur terrain: 16 ml
  • Exposition: sud-ouest

EMPLACEMENT DU TERRAIN

  • Proche commerce: OUI
  • Proche école primaire: OUI
  • Proche centre ville: OUI
  • Transports: OUI
  • Quartiers:
Powered by Estatik

Reset password

Entrez votre adresse e-mail et nous vous enverrons un lien pour changer votre mot de passe.

Commencez avec votre compte

pour enregistrer vos maisons préférées et plus encore

Inscrivez-vous avec l'adresse e-mail

Commencez avec votre compte

pour enregistrer vos maisons préférées et plus encore

By clicking the «S'INSCRIRE» button you agree to the Conditions d'utilisation and Politique de confidentialité
Powered by Estatik